Nous utilisons des cookies pour vous offrir la meilleure expérience possible sur notre site web.
En poursuivant votre navigation, vous acceptez l'utilisation des cookies par notre site web, pour en savoir plus cliquez ici.
Keven Hernandez
Courtier immobilier
Cellulaire : 514 913-3250
Bureau : 450 471-5503
Télécopieur :
9, Place du Haut-Bois,
app. 101,
Sainte-Anne-des-Plaines
No Centris 10488152
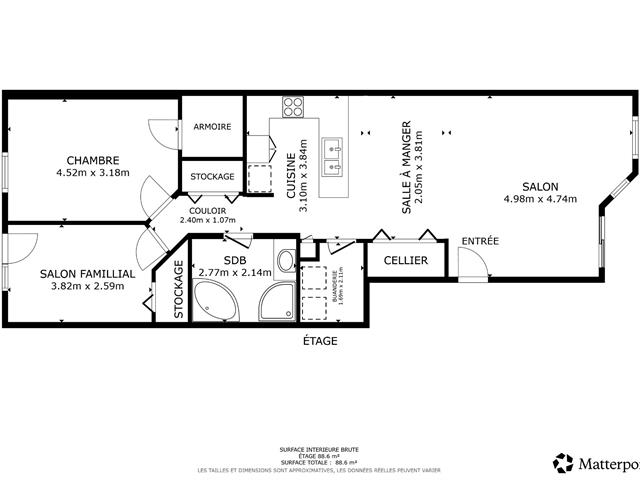
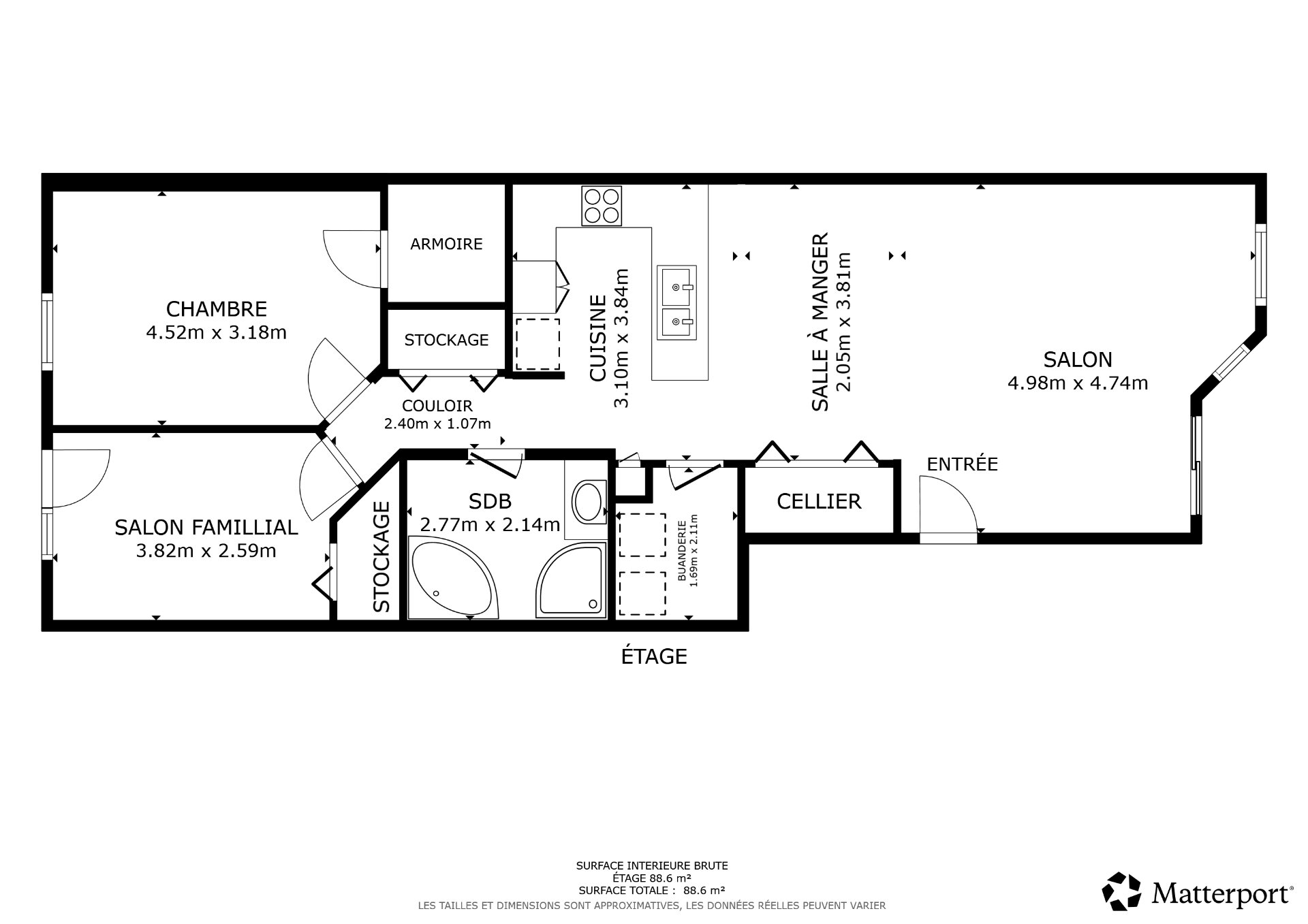
9 Pièce(s)
2 Chambre(s)
1 Salle(s) de bains
88.90 m²
Ce charmant condo de plus de 950 pi² au rez-de-jardin séduit par son espace lumineux et son ambiance accueillante. Profitez de deux terrasses en pavé uni, parfaites pour vos cafés du matin ou vos soirées d'été. La propriété offre deux chambres confortables, une salle de bain avec bain en coin, une salle de lavage fermée et un garage privé. Situé à deux pas de la piste cyclable La Seigneurie des Plaines, un vrai coup de coeur pour les amateurs de plein air !
Pièce(s) : 9 | Chambre(s) : 2 | Salle(s) de bains : 1 | Salle(s) d'eau : 0
Stores, luminaires, lave-vaisselle
Un condo lumineux et bien pensé pour un confort au quotidien
Ce condo de plus de 950 pi² situé au rez-de-jardin combine espace, praticité et luminosité. Avec ses deux chambres, son garage et ses deux terrasses pri...
Un condo lumineux et bien pensé pour un confort au quotidien
Ce condo de plus de 950 pi² situé au rez-de-jardin combine espace, praticité et luminosité. Avec ses deux chambres, son garage et ses deux terrasses privées, il offre un style de vie agréable et sans tracas dans un environnement pratique et facilement accessible.
Aire de vie principale -- Espace, clarté et fonctionnalité
Dès l'entrée, un hall accueillant avec garde-robe double donne le ton à un intérieur à aire ouverte où chaque détail a été pensé pour le confort. Le salon, baigné de lumière naturelle grâce à ses deux fenêtres et à la porte-patio menant à la terrasse avant, invite à la détente. Le plancher flottant unifie élégamment le salon et la salle à manger, créant une atmosphère chaleureuse et harmonieuse. La cuisine se distingue par ses nombreuses armoires, ses vastes surfaces de comptoir et son agencement pratique qui facilite les repas au quotidien. Une garde-robe de rangement supplémentaire dans le passage ajoute au côté fonctionnel de l'espace.
Espaces de repos -- Calme et intimité
La chambre principale offre un vaste walk-in et une belle luminosité, parfaite pour un espace reposant et organisé. La seconde chambre, dotée d'une garde-robe et d'un accès direct à une terrasse arrière en pavé uni, se prête aussi bien à un bureau qu'à une chambre d'invités. La salle de bain combine élégance et commodité avec son bain en coin en céramique, sa douche indépendante et sa vanité offrant beaucoup de rangement. La salle de lavage, fermée et indépendante, comprend des armoires pratiques pour un maximum d'efficacité.
Extérieur -- Deux terrasses pour profiter pleinement de la belle saison
À l'avant comme à l'arrière, les terrasses en pavé uni prolongent agréablement la vie intérieure. Vous profiterez également d'un garage privé ainsi que d'un espace de stationnement extérieur. Les amateurs de plein air apprécieront la proximité immédiate de la piste cyclable La Seigneurie des Plaines, idéale pour vos balades ou vos trajets quotidiens. Directement accessible depuis la résidence, la piste cyclable La Seigneurie des Plaines offre à la fois un décor naturel enchanteur -- tourbières, boisés -- et un lien direct vers les grands réseaux cyclables de la région.
Un secteur pratique et en développement
Situé dans un secteur dynamique offrant un accès rapide aux services essentiels -- écoles, parcs, commerces et axes routiers --, ce condo représente un choix judicieux pour ceux qui recherchent confort, tranquillité et commodité au même endroit.
Contactez-nous dès aujourd'hui pour planifier votre visite et découvrir tout le potentiel de ce superbe condo !
Nous utilisons des cookies pour vous offrir la meilleure expérience possible sur notre site web.
En poursuivant votre navigation, vous acceptez l'utilisation des cookies par notre site web, pour en savoir plus cliquez ici.